メビウスブレイン油壺マリナテラス

3,998万円

神奈川県三浦市三崎町小網代

京急久里浜線「三崎口」駅バス15分「油壷」停歩2分

価格
3,998万円
間取り
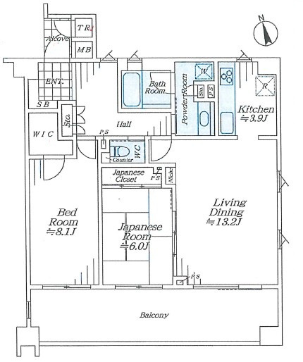
2LDK
向き
所在地
神奈川県三浦市三崎町小網代
交通

京急久里浜線三崎口」駅 バス15分 「油壷」 停歩2分

専有面積
75.44㎡
築年月
2004年12月(築21年)

物件の特徴

  • 室内洗濯機置場

  • オートロック

  • エレベーター

セールスポイント

三浦市三崎町小網代「油壷マリナテラス」
<おすすめポイント>
・ハウスクリーニング実施予定(令和8年4月9日)
・海を一望する高台に佇むリゾートマンション、オーシャンビュー、最上階角部屋です♪
・南向きで日当たり良好です
・ペットと一緒に暮らせます
・大浴場は檜・岩の露天風呂付き!行き交うヨットを眺めながらリラックスできます
・近くには海水浴場、磯遊びや釣りが楽しめるスポットもあります

ポイント

海が近い バス停徒歩3分以内 ウォークインクロゼット 角部屋

担当者のコメント

鈴木 秀章

マリンスポーツや釣りをする方にもおすすめのリゾートマンション。
バルコニーからは油壺湾を、大浴場からは小網代湾の景色を望むことができます。

基本情報

管理費
29,500円
修繕積立金
10,410円
修繕積立基金
-
間取り / 詳細
2LDK
LDK 17.1帖 1室/洋室 8.1帖 1室/和室 6.0帖 1室
向き
専有面積
75.44㎡
バルコニー面積
18.40㎡
その他面積
-
-
-
所在階 / 階建て
5階 / 5階建 地下1階
建物構造
鉄筋コンクリート
築年月
2004年12月(築21年)
種別
中古マンション
駐車場 / 月額
空有 / 0円 令和8年3月現在
土地権利
所有権
土地
(敷金 / 保証金)
- / -
国土法届出要否
不要
接道状況
-
用途地域
近隣商業
地勢
-
都市計画
-
現況
空家
引渡し
相談
取引態様
仲介
棟総戸数
57戸
管理形態
管理会社に全部委託
管理会社 /
管理組合有無
明和地所コミュニティ(株) / -
その他条件
大浴場運営費月:5,880円  水道基本料月:1,350円  組合運営費月:1,600円
取引条件の
有効期限
2026年04月25日

設備条件

設備条件
  • ペット相談 / ペット飼育可 / 海が近い / 室内洗濯機置場 / フローリング / バルコニー / 都市ガス / 公営水道 / 公共下水 / エレベーター / 駐輪場 / バイク置場あり / アルコーブ / IHクッキングヒーター / スロップシンク / ウォークインクロゼット / トランクルーム / オートロック / 宅配ボックス
設備(その他)
    -

その他

物件番号
102928277
管理コード
-
建築確認番号
-
情報更新日
2026年04月11日
次回更新予定日
2026年04月25日
取扱会社
  • セイケンホーム株式会社 
  • 神奈川県相模原市南区大野台2丁目6-15 
  • TEL:042-786-6701
  • 神奈川県知事 (7) 第21528号

周辺施設

  • 三浦市立名向小学校の画像

    小学校

    三浦市立名向小学校

    1613m(21分)

  • Fuji三崎店の画像

    スーパー

    Fuji三崎店

    1922m(25分)

  • セブンイレブン 三浦三崎町店の画像

    コンビニエンスストア

    セブンイレブン 三浦三崎町店

    2127m(27分)

  • 三浦市立 三崎中学校の画像

    中学校

    三浦市立 三崎中学校

    2676m(34分)

支払いシミュレーション

月々の支払額

※実際の金額と異なる場合があります。

購入希望物件価格
万円
頭金
万円
金利
%
返済額(ボーナス1回分)
万円
返済期間

※ボーナスは自動で年2回分で計算されます。

よく見られている物件

  1. メビウスブレイン油壺マリナテラス

    三浦市三崎町小網代

    2LDK (75.44㎡)

    3,998万円

  2. コンセリオ古淵

    相模原市南区古淵1丁目

    3LDK (63.38㎡)

    2,480万円

  3. 厚木サンハイツ

    厚木市水引2丁目

    3DK (55.78㎡)

    850万円

  4. ガーデンブリーズ光の街 2階部分

    相模原市中央区上溝

    4LDK (83.75㎡)

    2,690万円

メビウスブレイン油壺マリナテラス

メビウスブレイン油壺マリナテラス

3,998万円

29,500円

2LDK(75.44㎡)

お気軽にお問い合わせください

無料お問い合わせ

セイケンホーム株式会社 

042-786-6701

10:00-18:00

(休:火曜日・水曜日)